All units are designed for automotive use, featuring high ceilings, wide bays, and infrastructure that supports vehicles, lifts, mezzanines, and restroom build-outs. Unit sizes vary to accommodate different collections, uses, and operational needs.

Flexible Units Built Around You

30’ x 40’ Units

Aprox. 1,200 sq ft

Click to enlarge images.

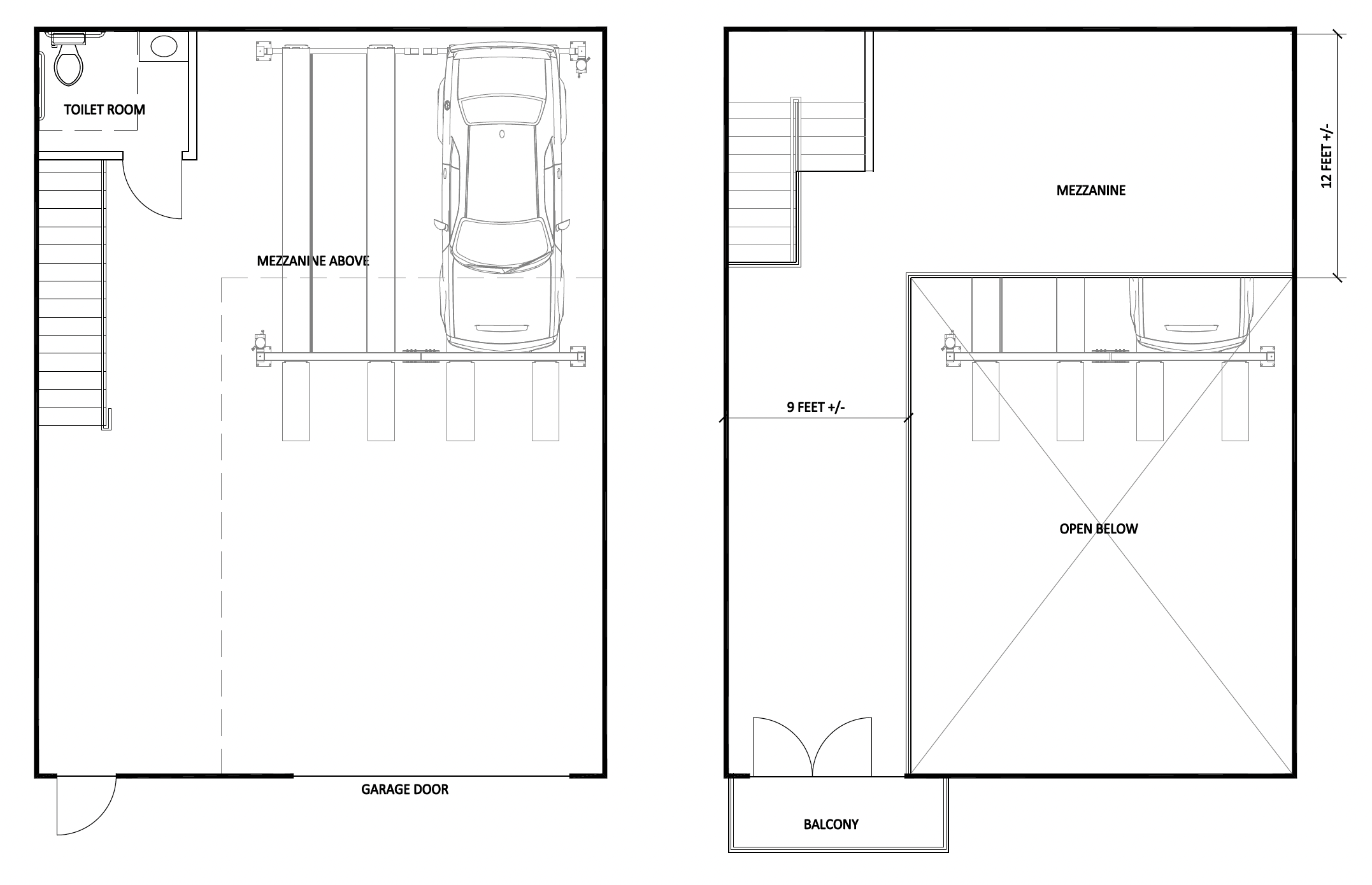
30’ x 50’ Units

Aprox. 1,500 sq ft

Click to enlarge images.

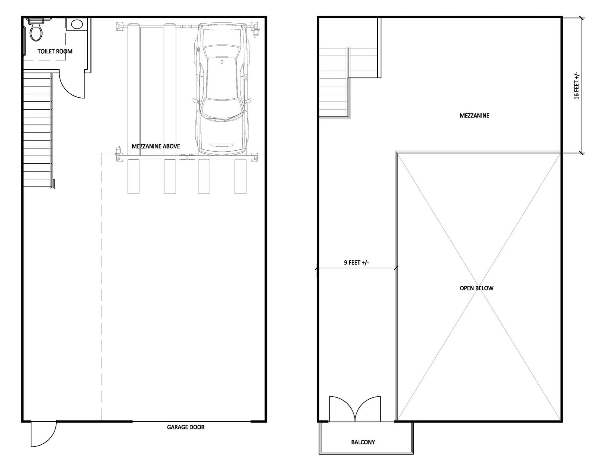
30’ x 60’ Units

Aprox. 1,800 sq ft

30’ x 60’ unit floor plan showing main level garage bay and mezzanine layout.

Click to enlarge images.

30’ x 80’ Units

Aprox. 2,400 sq ft

30’ x 80’ unit floor plan showing main level garage bay and mezzanine layout.

Click to enlarge images.

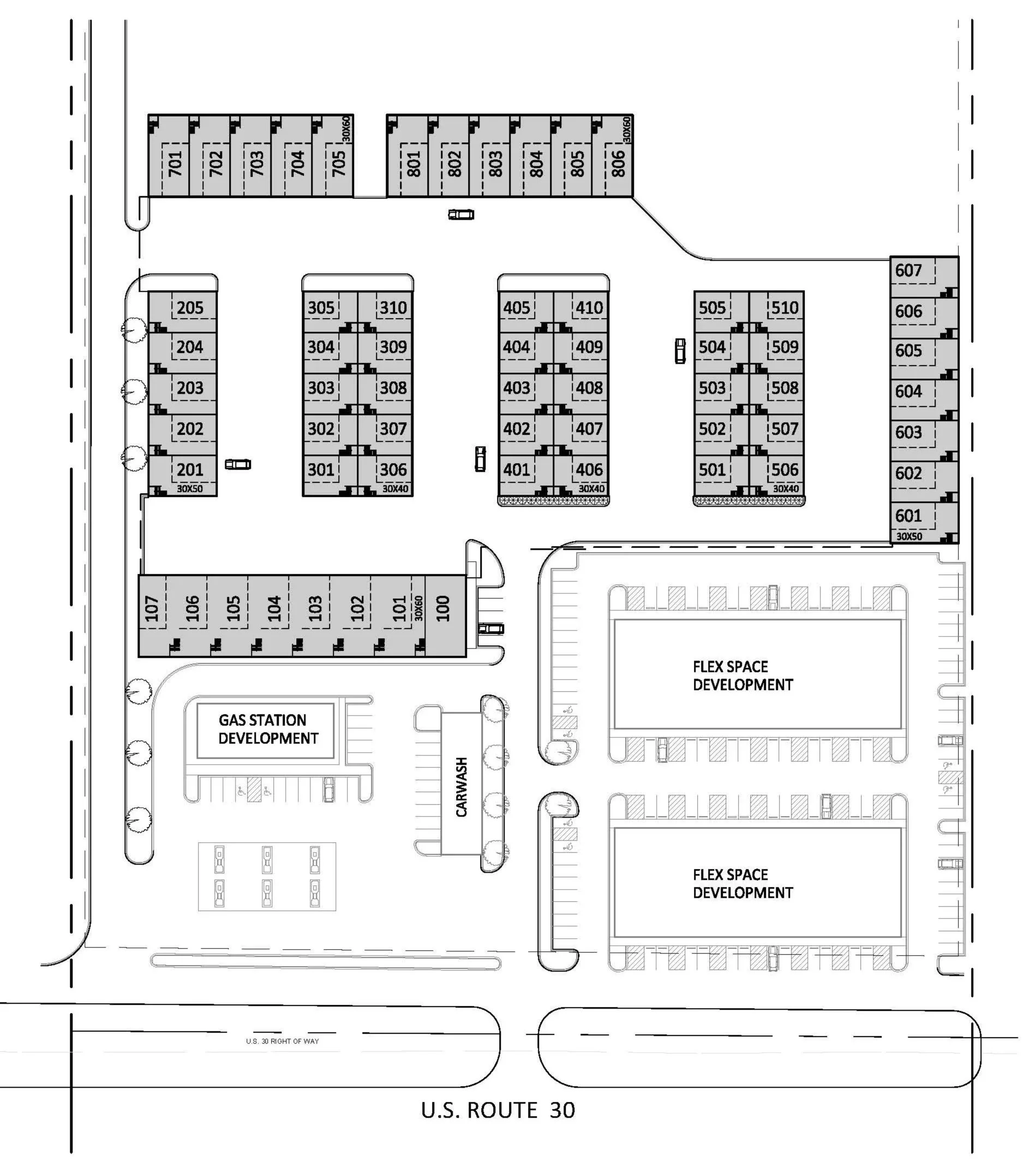
The Site Plan

Proven Process, Flexible Execution

We bring structure where it counts and adaptability where it matters. Our methods are clear, but always responsive.